Bilocale con terrazziono, Via Bergamo 4

Torino - zona Aurora

Rif: blocale bergamo 4
Condividi Linkedin Whatsapp Stampa
€ 185.000
Appartamento
54 Mq
2 Vani
Classe energetica A2
1 camera
1 bagno
Ascensore
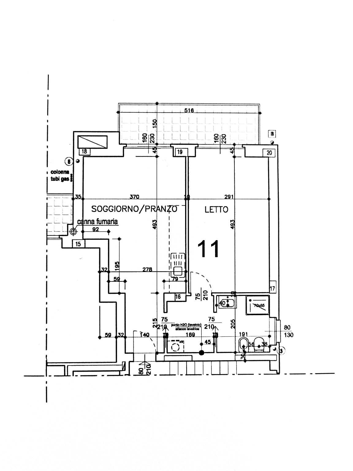
Recente costruzione del 2023. Immediate vicinanze Polo Lavazza e Campus Einaudi. In stabile privo di barriere architettoniche e dotato di ascensore, area ecologica e locale deposito bici, proponiamo in vendita grazioso bilocale di mq 54 sito al terzo piano e composto da ingresso living su zona giorno con cucina a vista, camera , disimpegno/lavanderia , bagno, un terrazzino ed un locale cantina. Sono presenti: tende da sole, portoncino blindato, infissi in legno con doppi vetri, predisposizione impianto antifurto, tapparelle elettriche, condizionatore d'aria, impianto di riscaladamento a pavimento. Classe energetica A/2. L'immobile risulta essere in posizione totalmente silenziosa grazie al suo affaccio sul lato interno. Possibilità acquisto box auto al piano cortile Eu. 30.000.

Dettaglio immobile

Contratto Vendita
Rif blocale bergamo 4
Prezzo € 185.000
Provincia Torino
Comune Torino
Zona Aurora
Indirizzo Via Bergamo 4
Superficie 54 mq
Vani 2
Camere 1
Bagni 1
Classe energetica A2 (DL 90/2013)
EPgl,nren 175 kwh/m2 anno
Piano 3 / 6
Riscaldamento centralizzato
Condizioni ottime condizioni
Spese condominiali € 116
Anno di costruzione 2023
Ascensore si
Cantina si
Cucina a vista
Balcone si

Consistenze

Descrizione Superficie Sup. comm.
Principali
Immobile - 3° piano 54 Mq 54 Mqc
Totale 54 Mqc

Planimetrie

Richiedi maggiori informazioni

Autorizzazione al trattamento dei dati personali+
Dichiaro di aver letto l'informativa sulla privacy ed accetto le condizioni d'utilizzo del servizio.
Riempi il campo con il codice riportato nell'immagine*
Codice Captcha
Chiamaci Contattaci