CORSO TRAIANO - MAGAZZINO - PALESTRA

Torino - zona Mirafiori Sud - Onorato Vigliani

Rif: Eco Immobiliare
Condividi Linkedin Whatsapp Stampa
€ 99.000
Vendita
Magazzino
250 Mq
Classe energetica Non soggetto
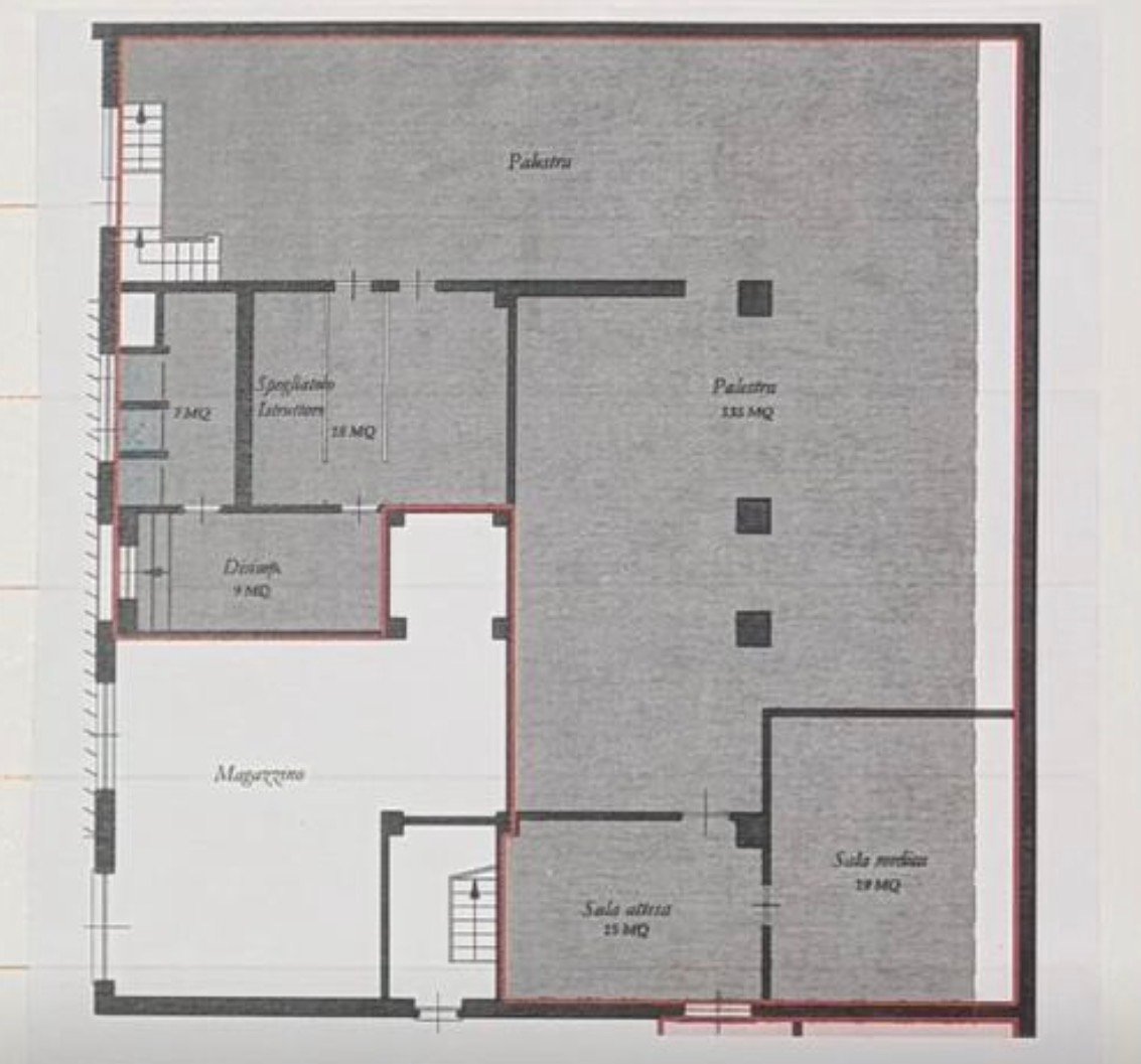
CORSO TRAIANO - (interni) All'interno di un contesto condominiale, con accesso indipendente, proponiamo locale magazzino attualmente adibito a palestra, di circa 250 mq con possibilità di varie tipologie di utilizzo - possibilità di posti auti -

Per ulteriori informazioni contattare il numero 011-3979760 - ECO IMMOBILIARE .

Dettaglio immobile

Contratto Vendita
Rif Eco Immobiliare
Prezzo € 99.000
Provincia Torino
Comune Torino
Zona Mirafiori Sud - Onorato Vigliani
Indirizzo Corso Traiano 68
Superficie 250 mq
Classe energetica Non soggetto
Condizioni abitabile
Spese condominiali € 100
Ascensore no

Consistenze

Descrizione Superficie Sup. comm.
Principali
Magazzino - seminterrato 250 Mq 250 Mqc
Totale 250 Mqc

Planimetrie

Richiedi maggiori informazioni

Autorizzazione al trattamento dei dati personali+
Dichiaro di aver letto l'informativa sulla privacy ed accetto le condizioni d'utilizzo del servizio.
Riempi il campo con il codice riportato nell'immagine*
Codice Captcha
Chiamaci Contattaci